CAD Support

Efficient and accurate CAD support for all your design needs, ensuring precise 2D and 3D drawings for seamless project execution.

Say goodbye to uncertainty!

Serving the UAE and clients globally, our tailored CAD solutions are built to meet the evolving demands of modern engineering, architecture, and construction industries. 

No delays, no confusion—our team integrates updates seamlessly, adapting to project changes and maintaining alignment with tight deadlines without compromising quality.

At COMFOTEC, we don’t just provide CAD services; we partner with you to streamline workflows, eliminate costly errors, and achieve unmatched project efficiency. By acting as an extension of your team, we deliver solutions that ensure your designs are not only accurate but also future-ready.

Design Drawings - CAD Support and CAD Services

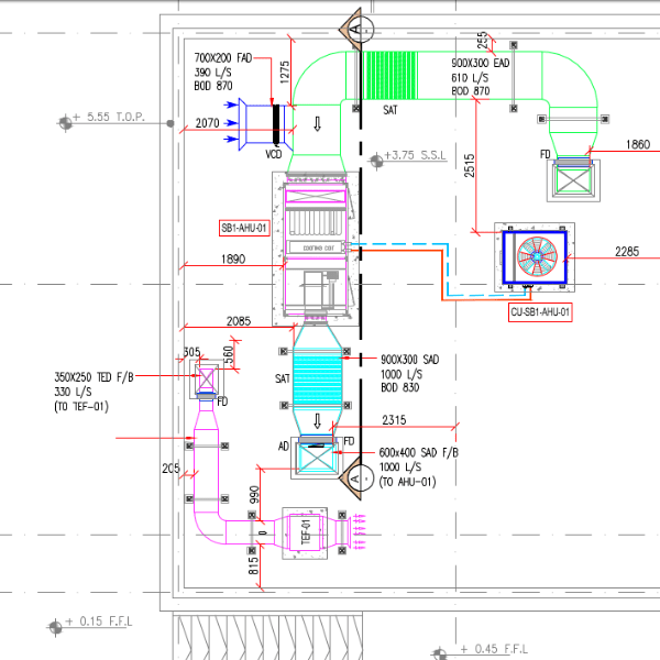
Design Drawings

With our detailed 2D Design Drawings, you can visualize your project accurately from the early design stages, significantly improving overall planning and coordination for making BIM Models accurate.
Shop Drawings - CAD Support and CAD Services

Shop Drawings

Our 2D shop drawings offer accurate, fabrication-ready documentation tailored to meet your project’s specific requirements. These detailed drawings ensure smooth communication between teams.
As Built Documentation - CAD Support and CAD Services

As Built Documentation

We provide comprehensive 2D as-built documentation, ensuring your project’s final deliverables accurately reflect real-world conditions and meet all necessary standards. Contact us for more information.
Clash Coordination - CAD Support and CAD Services

Clash Coordination

Through 2D CAD coordination, we detect and resolve conflicts between various systems (MEP, structural, etc.) before construction begins and make necessary documentation for approval and Authority Submissions. This proactive approach ensures smoother project execution, reduces delays, and guarantees timely approvals.
Scan to CAD - CAD Support and CAD Services

Scan to CAD

We don’t just convert measurements—we translate every detail into precise, usable models tailored to your project’s unique needs. From retrofits to renovations, our team ensures nothing is overlooked, giving you the confidence to move forward with accurate, actionable data. At COMFOTEC, we make your vision digital—seamlessly and efficiently.
PDF to CAD - CAD Support and CAD Services

PDF to CAD

Using advanced technology and meticulous attention to detail, we guarantee high-quality conversions that retain the integrity of your original design, making your project workflow more efficient and effective. COMFOTEC helps you unlock the potential of your existing designs by providing easy-to-edit CAD formats.

Services

Interested in joining us?

We’re always on the lookout for talented individuals to join the Comfotec team. If you’re passionate about BIM and want to grow your career with us, let’s connect and discuss the opportunities that await you!